一、襯氟球閥 產品概述
Q41F46襯氟球閥,用聚四氟乙烯作為內襯材料,配之以新型的帶桿球體結構,再加上其獨特的彈性唇式密封座結構,使其具有普通球閥的各項優點,能在大壓差和較大的溫差變化范圍內具有高密封性能和低操作扭矩。手動襯氟球閥,襯四氟法蘭球閥可作開關或調節之用。
特點:
全襯聚四氟乙烯(F4)、聚三氟氯乙烯(F3)和聚全氟乙丙烯(F46)氟塑料襯里蝶閥,具有耐腐蝕、無泄漏、壽命長等優點。襯四氟電動蝶閥適用于濃硫酸、鹽酸、硝酸、氫氟酸、王水、各種有機酸、強酸、氧化性介質或高溫烯硫酸、高溫濃醋酸、酸堿交替及多種有機溶劑和其它強腐蝕性介質。
1、小型輕便,容易拆裝及維修,并可在任意位置安裝。
2、結構簡單、緊湊,90°回轉開啟迅速。
3、操作扭矩小,省力輕巧。
4、流量特性趨於直線,調節性能好。
5、密封材料耐老化、耐腐蝕、可適用多種介質。
適用場景:
襯氟球閥是化工、石油、醫藥、食品、鋼鐵冶煉、造紙、水電等系統的氣體、液體、半流體的管路和容器上作截流和調節設備使用的理想產品,并可取代閘閥、截止閥和其它類型的切斷、調節閥門。
二、襯氟球閥 產品圖片
 |
 |
| 碳鋼襯氟球閥 |
不銹鋼襯氟球閥 |
三、襯氟球閥 零部件材料
| 零件名稱 |
灰鑄鐵 |
鑄鋼 |
不銹鋼 |
超低碳不銹鋼 |
| Z |
C |
P |
R |
PL |
RL |
| 閥體、閥蓋 |
HT250 |
WCB |
CF8 |
CF8M |
CF3 |
CF3M |
| 球體 |
WCB |
WCB |
CF8 |
CF8M |
CF3 |
CF3M |
| 襯里層/閥座 |
FEP(F46) PCTFE(F3)PFA(可洛性聚四氟乙烯) |
| 填料壓蓋 |
HT250 |
WCB |
CF8 |
CF8M |
CF3 |
CF3M |
| 填料 |
PTFE(F4) 聚四氟乙烯 PTFE(F4)聚四氟乙烯 |
| 螺栓 |
35 |
35 |
1Cr17Ni2 |
1Cr17Ni2 |
1Cr18Ni9 |
1Cr18Ni9 |
| 螺母 |
45 |
45 |
0Cr18Ni9 |
0Cr18Ni9 |
0Cr18Ni9 |
0Cr18Ni9 |
| 手柄 |
WCC |
WCC |
WCC |
WCC |
WCC |
WCC |
四、襯氟球閥 技術參數
| 稱通經DN(mm) |
15~200 |
| 公稱壓力PN(MPa) |
0.6 |
1.0 |
1.6 |
| 密封試驗(MPa) |
0.66 |
1.1 |
1.76 |
| 強度試驗(MPa) |
0.9 |
1.5 |
2.4 |
| 適用溫度 |
丁腈橡膠:-40℃~90℃、氟橡膠:-20℃~200℃ |
| 適用介質 |
水、空氣、天然氣、油品及弱腐蝕性流體 |
| 泄漏率 |
符合GB/T13927-92標準 |
| 驅動方式 |
電動 |
| 配置執行機構 |
可配氣動執行器、電動執行器 |
| 控制方式 |
開關到位燈(開關兩位控制)、智能調節(4~20mA模擬量信號控制) |
五、襯氟球閥 性能規范
| 公稱通徑 |
DN(mm) |
15~200 |
| 公稱壓力 |
PN(MPa) |
0.6 |
1.0 |
1.6 |
| 試驗壓力 |
強度試驗 |
0.9 |
1.5 |
2.4 |
| 密封試驗 |
0.66 |
1.1 |
1.76 |
| 氣密封試驗 |
0.6 |
0.6 |
0.6 |
| 適用溫度 |
≤150℃ |
| 適用介質 |
具有腐蝕性介質 |
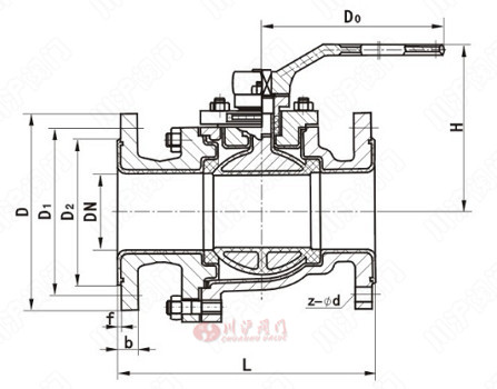
六、襯氟球閥 結構圖
七、襯氟球閥 連接尺寸
| 公稱通徑 |
標準值 |
參考值 |
| DN(mm) |
NPS(inch) |
L |
D |
D1 |
D2 |
f |
b |
Z-Φd |
Do(手柄) |
Do(蝸輪) |
H |
WT(Kg) |
| PN1.0MPa |
| 15 |
1/2 |
140 |
95 |
65 |
45 |
2 |
14 |
4-Φ14 |
120 |
|
80 |
2.5 |
| 20 |
3/4 |
140 |
105 |
75 |
55 |
2 |
16 |
4-Φ14 |
140 |
|
90 |
3 |
| 25 |
1 |
150 |
115 |
85 |
65 |
2 |
16 |
4-Φ14 |
160 |
|
100 |
4.5 |
| 32 |
11/4 |
165 |
135 |
100 |
78 |
2 |
18 |
4-Φ14 |
160 |
|
110 |
5.7 |
| 40 |
11/2 |
180 |
145 |
110 |
85 |
2 |
18 |
4-Φ14 |
200 |
|
120 |
7 |
| 50 |
2 |
200 |
160 |
125 |
100 |
3 |
20 |
4-Φ14 |
250 |
|
135 |
9.5 |
| 65 |
11/2 |
220 |
180 |
145 |
120 |
3 |
20 |
4-Φ14 |
300 |
|
145 |
15 |
| 80 |
3 |
250 |
195 |
160 |
135 |
3 |
22 |
4-Φ14 |
350 |
|
185 |
19 |
| 100 |
4 |
280 |
215 |
180 |
155 |
3 |
22 |
8-Φ18 |
400 |
|
95 |
33 |
| 125 |
5 |
320 |
245 |
210 |
185 |
3 |
24 |
8-Φ18 |
500 |
|
210 |
58 |
| 150 |
6 |
360 |
280 |
240 |
210 |
3 |
24 |
8-Φ23 |
|
200 |
450 |
93 |
| 200 |
8 |
457 |
335 |
295 |
265 |
3 |
26 |
8-Φ23 |
|
240 |
490 |
155 |
| 250 |
10 |
533 |
390 |
350 |
320 |
3 |
28 |
12-Φ23 |
|
240 |
550 |
210 |
注:由于產品改進技術創新參數可能有一定變化,公司不另行通知,請咨詢公司技術部門索取新數據。