提供專業控制閥解決方案! 銷售熱線:021-5186 3046
上海川滬閥門有限公司
ShangHai Chuanhu Valve CO.,LTD
我們做的不僅是產品還是解決方案
川滬閥門品牌:電動球閥、電動蝶閥、氣動球閥、氣動蝶閥、電動調節閥、氣動調節閥
自力式調節閥、快速切斷閥、低溫閥門、耐腐蝕閥門、衛生級閥門、截止閥、閘閥
電動執行器、氣動執行器
鍛鋼止回閥
一、鍛鋼止回閥 產品概述
上海川滬閥門有限公司生產的鍛鋼止回閥有三種閥蓋設計形式.第一種是螺栓式閥蓋,按這種設計形式設計的閥門,其閥體與閥蓋用螺栓螺母連接,纏繞式墊片(316夾柔性石墨制造)密封.客戶有特殊要求時也可采用金屬環連接.第二種設計形式是焊接式閥蓋,按這種設計形式的閥門,其閥體與閥蓋用螺紋連接,全焊密封.客戶有特殊要求時也可采用透焊連接.第三種是壓力自緊式閥蓋,按這種設計形式設計的閥門,其閥體與閥蓋用螺紋連接,內壓自密環密封.
二、鍛鋼止回閥 產品圖片
![]() |
![]() |
| 鍛鋼止回閥(鍛鋼內螺紋連接) | 鍛鋼止回閥(不銹鋼內螺紋連接) |
三、鍛鋼止回閥 結構和安裝尺寸
![]() |
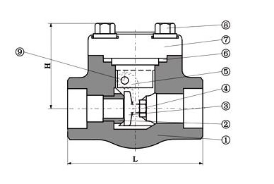
鍛鋼升降式止回閥800LB
標準材質明細表
| 序號 | 零件名稱 | CStoASTM | AStoASTM | SStoASTM | |
|---|---|---|---|---|---|
| A105 | F22 | F304(L) | F316(L) | ||
| 1 | 閥體 | A105 | A182F22 | A182F304(L) | A182F316(L) |
| 2 | 閥瓣 | A276420 | A276304 | A276304(L) | A276316(L) |
| 3 | 密封螺母 | 316夾柔性石墨 | 316夾PTFE | ||
| 4 | 密封圈 | A105 | A182F22 | A182F304(L) | A193 B8(M) |
| 5 | 固定螺母 | SS | |||
| 6 | 提升螺栓 | A193B7 | A193B16 | A193B8(M) | A193B8(M) |
| 適用介質 | 水、蒸汽、油品等 | 水、蒸汽、油品等 | 硝酸、醋酸等 | ||
| 適用溫度 | —29℃~425℃ | —29℃~550℃ | —29℃~200℃ | ||
注意:客戶需求的其他材質也可采用。密封面材料配對由客戶指定內件代號決定。
CS=碳鋼;AS=合金鋼;SS=不銹鋼;
尺寸(MM)和重量(KG)
| NPS | 縮徑 | 3/8” | 1/2” | 3/4” | 1” | 11/4” | 11/2” | 2” | |
|---|---|---|---|---|---|---|---|---|---|
| 全徑 | 3/8” | 1/2” | 3/4” | 1” | 11/4” | 11/2” | 2” | ||
| L | 79 | 79 | 92 | 111 | 120 | 152 | 172 | 200 | |
| W | 61 | 61 | 65 | 79 | 95 | 103 | 118 | 132 | |
| 重量 | 螺栓式 | 1.4 | 1.2 | 1.5 | 3.1 | 3.9 | 5.6 | 8.9 | 12.5 |
| 焊接式 | 1.1 | 1.0 | 1.2 | 2.9 | 3.3 | 4.9 | 8.1 | 10.9 | |
![]() |
鍛鋼升降止回閥900LB~1500LB
標準材質明細表
| 序號 | 零件名稱 | CStoASTM | AStoASTM | SStoASTM | |
|---|---|---|---|---|---|
| A105 | F22 | F304(L) | F316(L) | ||
| 1 | 閥體 | A105 | A182F22 | A182F304(L) | A182F316(L) |
| 2 | 閥瓣 | A276420 | A276304 | A276304(L) | A276316(L) |
| 3 | 墊片 | 316夾柔性石墨 | 316夾PTFE | ||
| 4 | 閥蓋 | A105 | A182F22 | A182F304(L) | A193 B8(M) |
| 5 | 銘牌 | SS | |||
| 6 | 螺栓 | A193B7 | A193B16 | A193B8(M) | A193B8(M) |
| 7 | 球 | A182F304 | A182F304 | A182F304 | A182F304 |
| 適用介質 | 水、蒸汽、油品等 | 水、蒸汽、油品等 | 硝酸、醋酸等 | ||
| 適用溫度 | —29℃~425℃ | —29℃~550℃ | —29℃~200℃ | ||
注意:客戶需求的其他材質也可采用。密封面材料配對由客戶指定內件代號決定。
CS=碳鋼;AS=合金鋼;SS=不銹鋼;
尺寸(MM)和重量(KG)
| NPS | 縮徑 | 3/8” | 1/2” | 3/4” | 1” | 11/4” | 11/2” | 2” | |
|---|---|---|---|---|---|---|---|---|---|
| 全徑 | 3/8” | 1/2” | 3/4” | 1” | 11/4” | 11/2” | 2” | ||
| L | 92 | 111 | 111 | 120 | 152 | 172 | 200 | 220 | |
| W | 65 | 79 | 79 | 97 | 104 | 120 | 139 | 215 | |
| 重量 | 螺栓式 | 1.6 | 3.4 | 3.3 | 5.5 | 6.0 | 9.2 | 12.9 | 16.2 |
| 焊接式 | 1.3 | 3.2 | 3.1 | 4.8 | 5.4 | 8.5 | 11.2 | 14.3 | |
![]() |
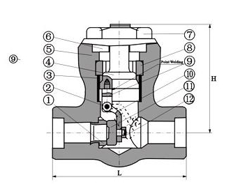
鍛鋼升降止回閥800LB、900LB~1500LB
標準材質明細表
| 序號 | 零件名稱 | CStoASTM | AStoASTM | SStoASTM | |
|---|---|---|---|---|---|
| A105 | F22 | F304(L) | F316(L) | ||
| 1 | 閥體 | A105 | A182F22 | A182F304(L) | A182F316(L) |
| 2 | 閥座 | A276410 | A276304 | A276F304(L) | A276F316(L) |
| 3 | 閥瓣 | A276420 | A276304 | A276F304(L) | A27F316(L) |
| 4 | 螺母 | A1942H | A1944 | A1948 | A1948M |
| 5 | 搖桿 | A105 | A182F22 | A182F304(L) | A182F316(L) |
| 6 | 墊片 | 316夾柔性石墨 | 316夾PTFE | ||
| 7 | 閥蓋 | A105 | A182F22 | A182F304(L) | A182 F316(L) |
| 8 | 螺栓 | A193B7 | A193B16 | A193B8(M) | A193B8(M) |
| 9 | 銷釘 | a276420 | A182F304 | A182F316 | |
| 適用介質 | 水、蒸汽、油品等 | 水、蒸汽、油品等 | 硝酸、醋酸等 | ||
| 適用溫度 | —29℃~425℃ | —29℃~550℃ | —29℃~200℃ | ||
注意:客戶需求的其他材質也可采用。密封面材料配對由客戶指定內件代號決定。
CS=碳鋼;AS=合金鋼;SS=不銹鋼;
尺寸(MM)和重量(KG)
| NPS | 3/8” | 1/2” | 3/4” | 1” | 11/4" | 11/2" | 2" | |
|---|---|---|---|---|---|---|---|---|
| L | 800LB | 79 | 79 | 92 | 111 | 120 | 120 | 140 |
| 900LB~1500LB | 92 | 111 | 111 | 120 | 120 | 140 | 178 | |
| W | 800LB | 61 | 61 | 78 | 84 | 101 | 120 | 133 |
| 900LB~1500LB | 79 | 79 | 79 | 97 | 105 | 120 | 140 | |
| 重量 | 800LB | 1.1 | 1.0 | 1.9 | 3.9 | 4.5 | 7.3 | 10.0 |
| 900LB~1500LB | 3.1 | 3.0 | 3.6 | 4.3 | 6.1 | 8.8 | 12.6 | |
![]() |
自密封旋啟式止回閥900LB~2500LB
| 序號 | 零件名稱 | CSTOASTM | ASTOASTM | SSTOASTM | |
|---|---|---|---|---|---|
| A105 | F22 | F304(L) | F316(L) | ||
| 1 | 閥座 | A276410 | A276304 | A276304(L) | A276316(L) |
| 2 | 銷釘 | A276420 | A182F304 | A182F316 | |
| 3 | 密封圈 | A276304L | A276316L | ||
| 4 | 密封螺母 | A105 | A182F304 | A182F304(L) | A182F316(L) |
| 5 | 閥體 | A105 | A182F22 | A182F304(L) | A182F316(L) |
| 6 | 閥蓋 | A105 | A182F22 | A182F304(L) | A182F316(L) |
| 7 | 提升螺母 | A1942H | A1944 | A1948 | A1948M |
| 8 | 四開環 | A276420 | A182F304 | A182F316 | |
| 9 | 吊橋 | A193B7 | A193B16 | A193B8 | A193B8M |
| 10 | 搖桿 | A105 | A182F22 | A182F304(L) | A182F316(L) |
| 11 | 閥瓣 | A276410 | F304 | A182F304(L) | F316(L) |
| 12 | 螺母 | A1942H | A1944 | A1948 | A1948M |
| 適用介質 | 水、蒸汽、油品等 | 水、蒸汽、油品等 | 硝酸、醋酸等 | ||
| 適用溫度 | —29℃~425℃ | —29℃~550℃ | —29℃~200℃ | ||
注意:客戶需求的其他材質也可采用。密封面材料配對由客戶指定內件代號決定。
CS=碳鋼;AS=合金鋼;SS=不銹鋼;
尺寸(MM)和重量(KG)
| NPS | 1/2” | 3/4” | 1” | 11/4" | 11/2" | 2" | |
|---|---|---|---|---|---|---|---|
| L | 900LB~1500LB | 140 | 140 | 140 | 178 | 178 | 216 |
| 2500lb | 186 | 186 | 186 | 232 | 232 | 279 | |
| H | 117 | 117 | 117 | 152 | 152 | 195 | |
| 重量 | 900LB~1500LB | 8.2 | 7.8 | 7.7 | 19.8 | 19.2 | 21.3 |
| 2500lb | 10.0 | 9.6 | 9.4 | 21.5 | |||
![]() |
自密封升降式止回閥900LB~2500LB
標準材質明細表
| 序號 | 零件名稱 | CStoASTM | AStoASTM | SStoASTM | |
|---|---|---|---|---|---|
| A105 | F22 | F304(L) | F316(L) | ||
| 1 | 閥體 | A105 | A182F22 | A182F304(L) | A182F316(L) |
| 2 | 閥瓣 | A276 420 | A276304 | A276304(L) | A276316(L) |
| 3 | 密封螺母 | A105+STL | F22+STL | A182 F304(L) | F316(L) |
| 4 | 密封圈 | A276 304L | A276 304L | A182F304(L) | A276 316L |
| 5 | 固定螺母 | A1942H | A1944 | A1948 | A194 8M |
| 6 | 提升螺栓 | A1942H | A1944 | A1948 | A194 8M |
| 適用介質 | 水、蒸汽、油品等 | 水、蒸汽、油品等 | 硝酸、醋酸等 | ||
| 適用溫度 | —29℃~425℃ | —29℃~550℃ | —29℃~200℃ | ||
注意:客戶需求的其他材質也可采用。密封面材料配對由客戶指定內件代號決定。
CS=碳鋼;AS=合金鋼;SS=不銹鋼;
尺寸(MM)和重量(KG)
| NPS | 1/2" | 3/4" | 1" | 1/4" | 11/2" | 2" | |
|---|---|---|---|---|---|---|---|
| L | 900LB~1500LB | 140 | 140 | 140 | 178 | 178 | 216 |
| 2500LB | 186 | 186 | 186 | 232 | 232 | 279 | |
| H | 117 | 117 | 117 | 152 | 152 | 195 | |
| 重量 | 900LB~1500LB | 7.5 | 7.0 | 6.8 | 18.5 | 18.1 | 20.3 |
| 2500LB | 9.0 | 7.6 | 8.4 | 19.5 | 20.1 | 21.8 | |
注:由于產品改進技術創新參數可能有一定變化,公司不另行通知,請咨詢公司技術部門索取新數據。
下載:上海川滬閥門有限公司-產品樣本-鍛鋼止回閥.PDF
鍛鋼止回閥鏈接:http://m.ansite.net.cn/products/zhihuifa/dgzhf.html
















